2620
Albertslund

Roholmsvej 10H

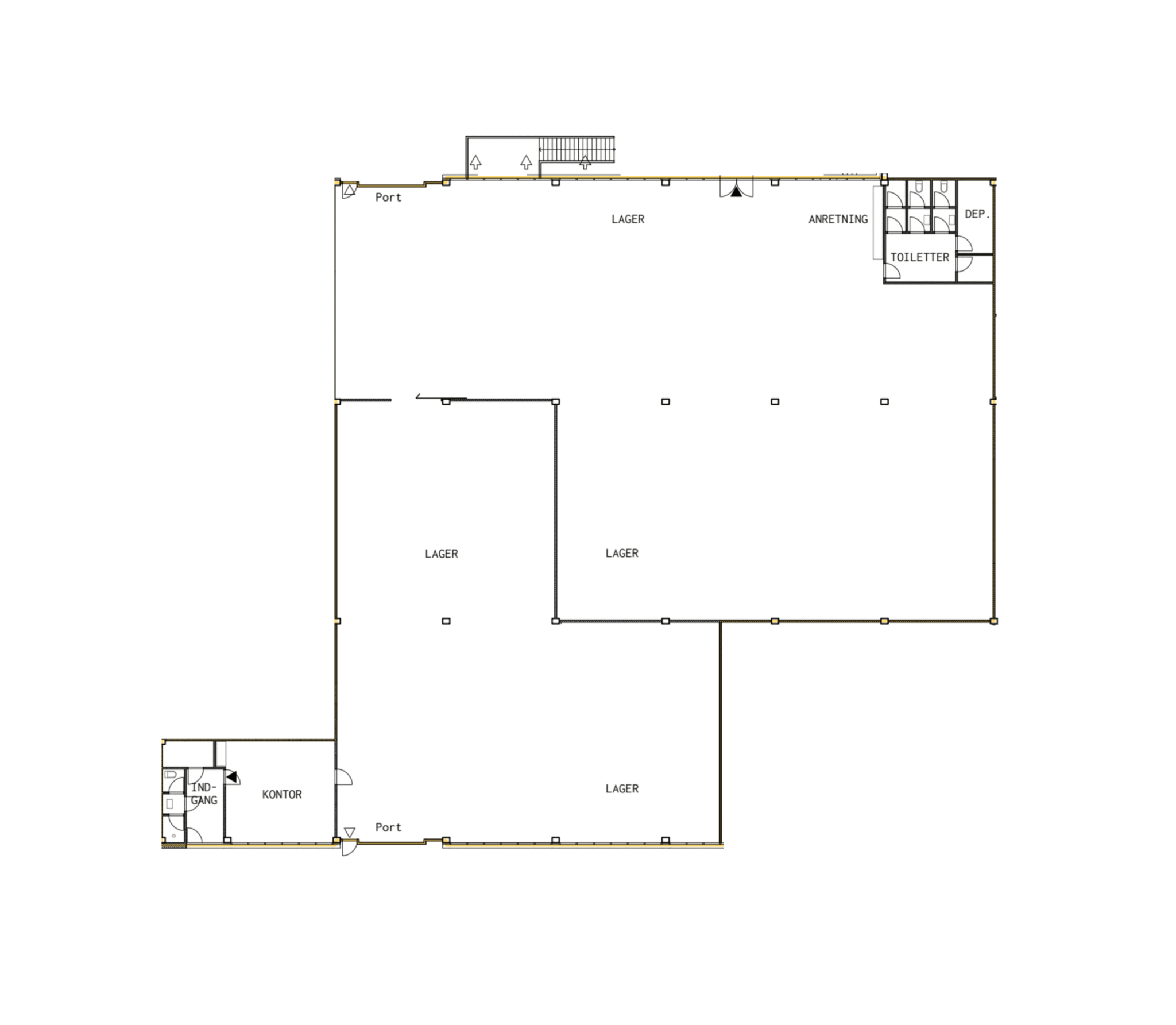
Funktionelt lager med to porte i Albertslund

Lejemålet på Roholmsvej vil efter renovering være klar til indbyde til brug som lager eller lettere produktion. Her får man 1.209 m² med en fleksibel indretning, der kombinerer to store regulære lager/showroom/produktionsområder med et separat kontor og toilet- samt spisefaciliteter.

Lejemålet vil blive nyistandsat med blandt andet nye epoxybelagte gulve og nymalet samt renoveret køkken, badefaciliteter, toiletter og omklædningsmuligheder. Kontoret fremstår lyst og funktionelt, og der er rigelig parkeringsplads på ejendommen – herunder opladning til elbiler.

Billederne er fra tidligere udlejning af lejemålet og fremviser derfor ikke resultatet inden genudlejning. Kontakt os for inspirationsbilleder af tilsvarende lejemål som kan forventes efter ombygningen.

Lejemålet har mulighed for udlejes som 2.457 m2, da tilstødende lejemål ligeså er under renovering og udlejning.

Med en praktisk beliggenhed i Albertslund, gode tilkørselsforhold og en indretning, der gør det let at kombinere lager og kontor, er dette lejemål ideelt for virksomheder med behov for både funktionalitet og sikkerhed.

Nøgleinformation

Adresse
Roholmsvej 10H
2620
Albertslund
Årlig leje
967.200 kr.
Mdr. leje
80.600 kr.
Leje
800 kr. pr. m2
A conto drift
160 kr. pr. m2
A conto varme
65 kr. pr. m2
Depositum
6 mdrs. leje
Areal
1.209 m2
Leje­regulering
NPI - min. 3,00%
Moms
Ja
Stand
Indflytning
Hvad leder du efter?
Find os
Udfyld nedenstående formular og download prospektet
Kontakt os