På Roholmsvej 12A i Albertslund udbydes et unikt erhvervslejemål på i alt 1.670 m², fordelt på lager i 1. sals niveau og kontorer på 2. sal. Kombinationen af effektiv logistik og præsentable arbejdspladser gør lejemålet velegnet til en bred vifte af virksomheder.
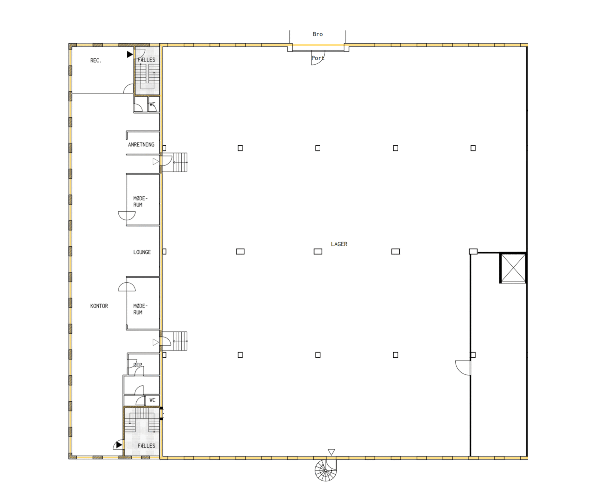
Lager
Lagerdelen er placeret på 1. sal med direkte adgang via rampe, hvilket sikrer effektiv vareindlevering og høj sikkerhed. Loftshøjden er omkring 4,5 meter, og etagedækket er dimensioneret til at bære tunge laster, hvilket giver stor fleksibilitet i anvendelsen.
Kontorer
På 2. sal findes moderne kontorfaciliteter med glas- og trædetaljer, der under istandsættelsen opgraderes yderligere med bl.a. nye tæppefliser. Indretningen byder på åbne områder, møderum og lounge samt mulighed for at tilpasse layoutet efter lejerens behov. Kontoret har adgang via to fællestrapper, og der er intern forbindelse mellem kontor og lager. Loftshøjden er ca. 3 meter, hvilket skaber et lyst og rummeligt arbejdsmiljø.
Ejendommen
Der er gode parkeringsforhold på ejendommen og nem tilkørsel fra Holbækmotorvejen, Ring 4 og Motorring 3, hvilket gør adressen attraktiv for både medarbejdere og logistik.
Lejemålet overtages nyistandsat efter aftale omkring årsskiftet.






