Nyistandsat lager / kølerum i præsentabel ejendom!
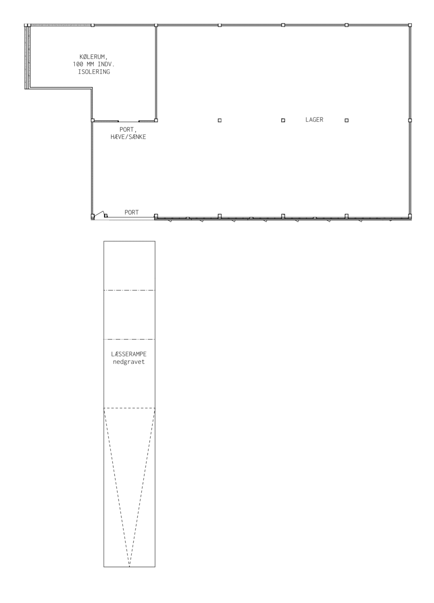
Lager og kølerum udlejes i ejendom med delt læsserampe. Rampen deles mellem to lejere, hvor dette lejemål udgør den ene part. Lejemålets formål er rent lager – enten køl- eller normal lageropbevaring. Lagerarealerne opvarmes med ejendommens centralvarme i form af radiatorer.
Ejendommen har gode parkeringsforhold, så der er pladser til både personale og gæster samt mulighed for opladning af elbiler (E-on og Clever).
Ejendommen er facade-renoveret med bl.a. nye vinduer og fremstår yderst præsentabel. Beliggende i roligt kvarter, nær offentlig transport og motorvejsnet og Københavns centrum.
Ejendommen er indhegnet med tilhørende elektriske porte samt video-overvåget i 24 timer, for at skabe trygge rammer.
Ligeledes forefindes hjertestarter på ejendommen.
Anførte priser er ekskl. moms.















