2635
Ishøj

Baldersbækvej 24A, st.

Funktionelt showroom med lager i Ishøj

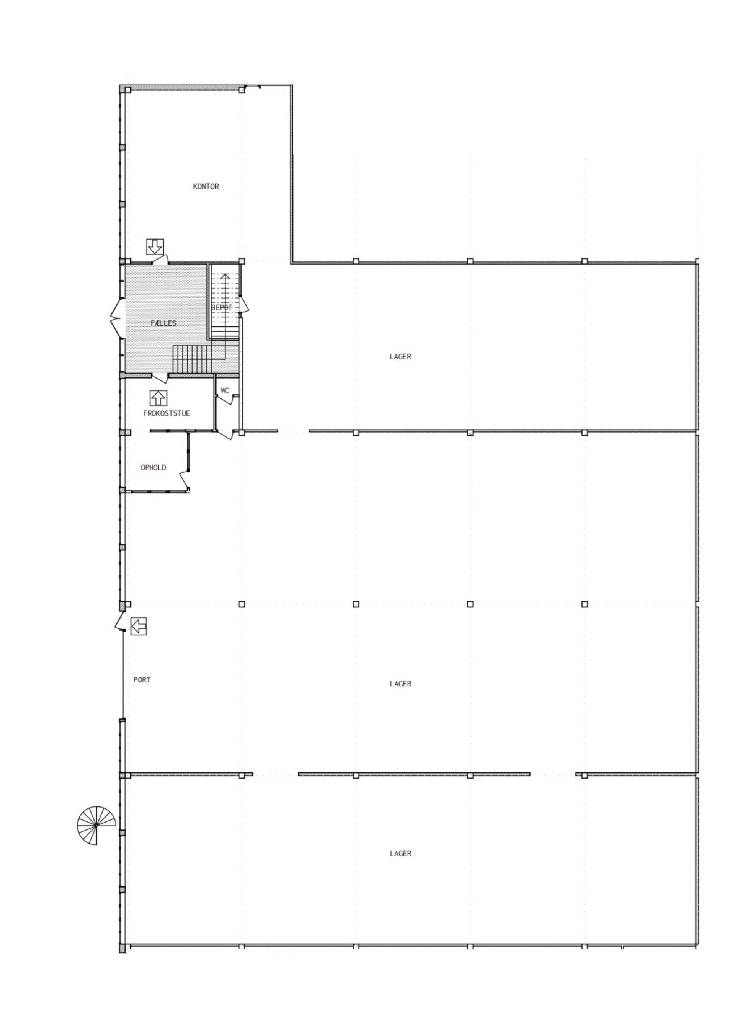
På Baldersbækvej 24A, st. udbydes et velindrettet lejemål på 1.180 m² (ca. 950 m² lager og 230 m² kontor og øvrigt), der kombinerer lager, kontor og showroom i ét. Lejemålet er tidligere anvendt til møbeludstilling og er derfor oplagt for virksomheder, som ønsker præsentable rammer til kunder – samtidig med at driften fungerer effektivt.

Lokalerne er regulære og fleksible med god loftshøjde og portadgang i terræn, hvilket giver nem adgang for både varer og kunder. Hertil kommer kontor, frokoststue og opholdsrum, så medarbejderne får en velfungerende base i dagligdagen.

Ejendommen er præsentabel og velbeliggende tæt på motorvejsnettet og tilbyder masser af parkering, hvilket gør logistikken enkel for både medarbejdere, kunder og leverandører. Inden indflytning i marts 2026 vil lejemålet blive istandsat med opdaterede overflader og moderne faciliteter.

Billederne er fra nabolejemålet og skal ses som inspiration til apteringsniveau og materialevalg.

Overtagelse: Fra marts 2026.

Nøgleinformation

Adresse
Baldersbækvej 24A, st.
2635
Ishøj
Årlig leje
1.003.000 kr.
Mdr. leje
83.583 kr.
Leje
850 kr. pr. m2
A conto drift
185 kr. pr. m2
A conto varme
80 kr. pr. m2
Depositum
6 mdrs. leje
Areal
1.180 m2
Leje­regulering
NPI - min. 3,00%
Moms
Ja
Stand
Indflytning
Hvad leder du efter?
Find os
Udfyld nedenstående formular og download prospektet
Kontakt os