Funktionelt og økonomisk kontor/ showroom/ lagerlejemål udlejes nær E47!
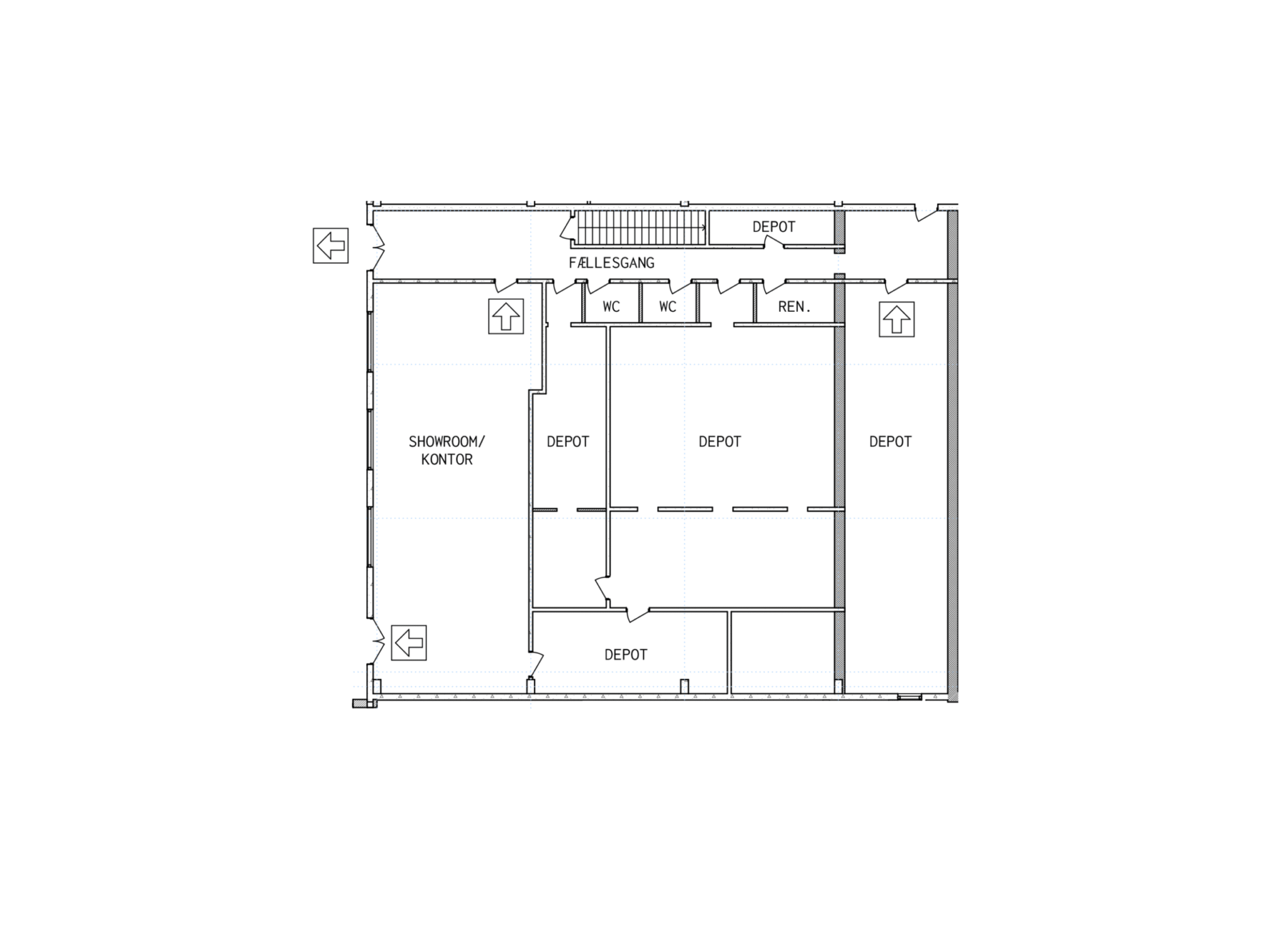
Lejemålet er gennemgribende renoveret med tæppefliser, epoxy gulv, nyt køkken/ spiseområde samt vindespartier for godt lysindfald. Lejemålet har niveau-fri-adgang via flere dobbeltdøre. Lagerdelen er uden vinduer og ideelt til opbevaring af f.eks. vin, tørvare eller anden lettere gods. Lejemålet har adgang til to toiletter.
Ejendommen er gennemgribende renoveret med facaderenovering og energioptimering. Automatisk portsystem og overvågning sikrer nem adgang og høj sikkerhed. Der er rigeligt med parkeringspladser, inkl. ladestandere til elbiler.
Beliggenhed: Ejendommen ligger i et attraktivt erhvervsområde i Herlev med kort afstand til både motorvejsnettet og offentlige transportmuligheder. Der er nem adgang til Herlev Station, og flere buslinjer kører tæt på ejendommen. I nærområdet finder I diverse indkøbsmuligheder, caféer og restauranter, hvilket gør det nemt for både medarbejdere og besøgende. Med sin centrale placering er ejendommen også tæt på København, hvilket gør det til et ideelt valg for virksomheder med både lokale og regionale forbindelser.
Dette lejemål er ideelt til virksomheder, der ønsker en kombination af funktionalitet og høj sikkerhed i en fremtidssikret ejendom.
Kontakt os for en fremvisning og oplev selv, hvad dette unikke lejemål har at byde på!












